Дом по адресу Новосибирск, Искитимский район, за 7150000 р.

Адрес Новосибирск, Искитимский район, поселок Агролес, Звездная улица
Цена 7 150 000 р.
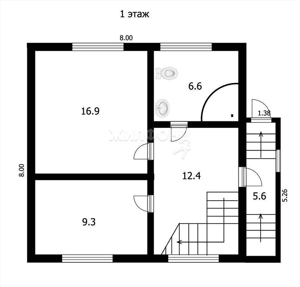
Площадь дома 110,1 м2, участка 5,18 м2
Дом по ул. Звездная. Общей площадью: 110.10 кв.м. В продаже благоустроенный, очень теплый, комфортный двухэтажный дом с 3мя изолированными просторными комнатами, доп. помещением 6 кв.м. и кухней - гостиной 17 кв.м. , с высокими потолками на земельном участке в 5,8 соток, в пос. Агролес Искитимского района! Удобное расположение дома, остановка общественного транспорта в шаговой доступности 3 минуты пешком - регулярно ходит маршрутное такси до города Бердск, . Расстояние до центра Бердска - 5-7 минут езды на машине. Приезжайте и убедитесь сами! . Центральные коммуникации: электро-, газо- и водоснабжение, слив - септик из блоков-колец на 15 кубов. Материал стен - калиброванный круглый брус 21 см. , крыша двух скатная профнастил, прочный фундамент (бетон+скальный камень) ! Заложен и залит фундамент под капитальный гараж 40 м2 Тех. постройки: баня 20 кв.м. , помещения для хоз. инвентаря 20 кв.м. , мастерская 10 кв.м. Внутренняя отделка - бревно, утепленное джутовым канатом. Пол первого этажа с подогревом, включая кухню, комнату и сан. узел, второго - линолеум. На втором этаже 2 изолированные комнаты и доп. помещение. Документы готовы к сделке, установлены границы земельного участка! Один совершеннолетний собственник. Походит любая форма расчета! Звоните, организую просмотр в удобное для Вас время! Возможен обмен на вашу недвижимость. Возможна продажа в рассрочку. При звонке, пожалуйста, сообщите номер варианта - JV008000100435
Объявление № 23456361
Дата подачи:
22 октября 2025 г. 0:29
Дата обновления:
22 октября 2025 г. 0:29
Просмотров 12 Хотите продать быстрее?

Продавец
Оксана Анатольевна
Показать номер телефона
Пожаловаться
Комментарии:
Добавить